PT 60 Portes

Description

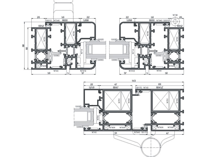
Système des profilés de porte avec la profondeur du dormant de 60 mm et de construction à 3 chambres avec rupture de pont thermique. NT 60PT permet de fabriquer les portes à un et deus vantaux, ouvrant à l’extérieur ou à l’intérieur, dotées des seuils différents. Le système assure également un simple montage des accessoires, Ce qui accélère considérablement la réalisation des constructions. NT 60PT permet aussi de fabriquer des portes dotées d’une feuillure centrale, ou la construction symétrique à trois chambres et l’emploie de deux connexions vissées dans chaque coin assurent la stabilité de construction. Le système utilise les charnières de portes encastrables, ce qui facilite le montage et le réglage des ouvrants.

Caractéristique

  • compatibilité avec les autres systèmes de la famille Ponzio (surtout avec le dormant de 60 mm),
  • ouvrant alignées avec les dormants,
  • variantes multiples de fabrication des ouvrants de porte: avec un barrot large ou ouvrants coupés sous un angle de 45°, sans ou avec un seuil,
  • possibilité d’utiliser les remplissages d’épaisseur de: 8-48 mm,
  • possibilité d’utiliser des joints modernes bi-composants en EPDM,
  • Profiles aluminium EN AW-6060 selon PN-EN 573-3:1998 version T6 selon PN-EN 515:199 Al Mg Si 0,5 F22 selon la norme DIN 1725 T1,
    Isolation thermique coefficient de transmission thermique du dormant est conforme au groupe de matériaux 2.1 pour les portes extérieures selon DIN 4108,
    Remplissage tous types de vitrage ou panneaux non-transparents,
    Finition de surface laquage à poudre avec des peintures polyester conformes aux exigences Qualicoat, couleurs aux choix selon la palette RAL; anodisation couleurs: aluminium naturel, olive, champagne, dorée, « vieil or », bronze - conforme aux exigences Qualanod,
    Joints en caoutchouc synthétique EPDM selon la norme 7863 et la norme d’exécution selon DIN 7715 E2
    Accessoires connexions d’angle, vis et cales en aluminium, acier inox ou galvanisé
    Quincaillerie fabricants mondialement reconnus: Fapim, Savio, Erreti, Iseo, Cisa, Hautau, Geze etc.
    Attestations et certificats
  • Agrément Technique ITB* AT-15-6166/2003 « Portes extérieures en système NT 60PT en profilés d’aluminium avec rupture de pont thermique »
  • Certificat de capacité: 2 classe anti-enfoncement selon PN-ENV 1627:2006
  • *ITB – Institut de la Technique du Bâtiment – équivalent polonais de CSTB